Search

Leave a Message

Thank you for your message. We will be in touch with you shortly.

Explore Our Properties

Property Description

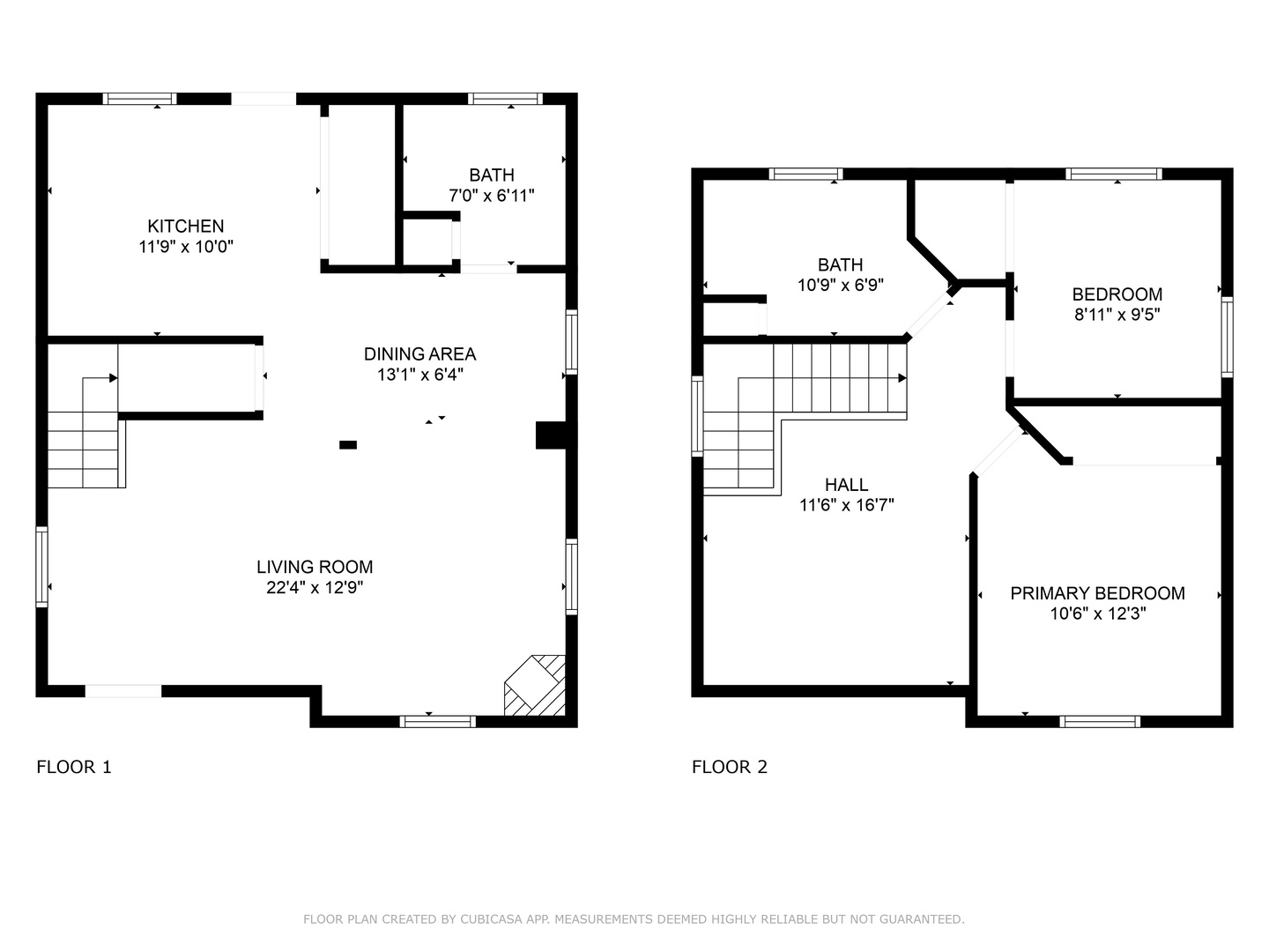
This move-in ready home is just steps from downtown St. Charles, offering the perfect blend of character, updates, and convenience with easy access to restaurants, shops, parks, and bike/walking paths. The open-concept main level features a bright living area, dining space, a beautifully updated full bath, and a kitchen with stainless steel appliances that flows seamlessly to the brand-new back deck and fully fenced yard, ideal for relaxing or entertaining. Upstairs, you'll find two comfortable bedrooms, a stylishly updated bath with double vanity and penny tile flooring, plus a versatile loft that can serve as an office, playroom, game room, or second living space. Recent updates include furnace (2020), A/C (June 2024), water softener (2025), and hardwood floors (2017, refinished 2020). The garage offers generous storage with dimensions of 19 ft x 24 ft. This move-in ready gem combines modern updates with walk-to-town convenience-don't wait, homes like this in St. Charles go fast!

Overview

Property Status
Sold
MLS ID
12486754
Property Type
Residential
Year Built
1903

Features & Amenities

Neighborhood
St. Charles
Garage Spaces
1.5
Water Source
Public
Parking
On Site, Detached, Garage
Heat Type
Natural Gas, Forced Air
Air Conditioning
Central Air
Laundry Room
Main Level
Appliances
Range, Microwave, Dishwasher, Refrigerator, Washer, Dryer, Disposal, Water Softener Owned
Sewer
Public Sewer
School District
303
Sales Price
$320,000
Real Estate Tax
$6,273/yr

Downloads

26 S 13th Street

Schedule a Tour

We would love to help you see this beautiful home! As a full-service brokerage, we can help you tour. Please submit an offer, and answer questions about the buying process.

Thank you

for your interest in 26 S 13th Street, St Charles, IL 60174

26 S 13th Street
Navigate
St. Charles

Explore St. Charles

Discover St. Charles, IL homes for sale. Explore real estate, schools, and riverfront living with Holzl Homes; your Fox Valley experts.

read more

I'm Interested In

26 S 13th Street

or
  • CallCarie Holzl

    License #475157027

    630-277-0569
  • Browse Our

    Portfolio

    Explore our featured properties, past transactions, or contact us to schedule a private showing.

    • 39W684 Switchgrass Lane Sold

      $1,670,000

      39W684 Switchgrass Lane, St Charles, IL 60175

      • 5 Beds
      • 5 Baths
      • 5,387 Sq.Ft.
    • 1335 Fox Glen Drive Sold

      $1,475,000

      1335 Fox Glen Drive, St Charles, IL 60175

      • 4 Beds
      • 6 Baths
      • 6,604 Sq.Ft.
    • 6N705 IL ROUTE 31 Sold

      $1,375,000

      6N705 IL ROUTE 31, St Charles, IL 60175

      • 5 Beds
      • 5 Baths
      • 7,000 Sq.Ft.
    • 3009 Glen Eagles Court Sold

      $1,212,500

      3009 Glen Eagles Court, St Charles, IL 60174

      • 5 Beds
      • 7 Baths
      • 4,848 Sq.Ft.
    • 20823 N Meadow Court Sold

      $1,111,111

      20823 N Meadow Court, Deer Park, IL 60010

      • 5 Beds
      • 5 Baths
      • 5,981 Sq.Ft.
    • 522 N Main Street Sold

      $975,000

      522 N Main Street, Naperville, IL 60563

      • 4 Beds
      • 5 Baths
      • 2,848 Sq.Ft.
    • 18 Campbell Street Sold

      $960,000

      18 Campbell Street, Geneva, IL 60134

      • 4 Beds
      • 4 Baths
      • 2,922 Sq.Ft.
    • 417 Alberosky Way Sold

      $907,500

      417 Alberosky Way, Batavia, IL 60510

      • 5 Beds
      • 5 Baths
      • 4,325 Sq.Ft.
    • 732 Alberosky Way Sold

      $905,000

      732 Alberosky Way, Batavia, IL 60510

      • 5 Beds
      • 5 Baths
      • 4,200 Sq.Ft.
    • 5065 E Sleepy Hollow Road Sold

      $900,000

      5065 E Sleepy Hollow Road, Earlville, IL 60518

      • 5 Beds
      • 4 Baths
      • 4,522 Sq.Ft.
    • 1050 PEBBLE BEACH Court Sold

      $895,000

      1050 PEBBLE BEACH Court, Geneva, IL 60134

      • 4 Beds
      • 5 Baths
      • 4,126 Sq.Ft.
    • 2347 Bird Lane Active Under Contract

      $875,000

      2347 Bird Lane, Batavia, IL 60510

      • 5 Beds
      • 5 Baths
      • 4,436 Sq.Ft.
    • 2396 Legacy Drive Sold

      $832,000

      2396 Legacy Drive, Aurora, IL 60502

      • 5 Beds
      • 4 Baths
      • 3,216 Sq.Ft.
    • 2195 Kane Lane Sold

      $826,000

      2195 Kane Lane, Batavia, IL 60510

      • 5 Beds
      • 4 Baths
      • 4,386 Sq.Ft.
    • 10N862 MUIRHEAD Road Sold

      $825,000

      10N862 MUIRHEAD Road, Elgin, IL 60124

      • 3 Beds
      • 3 Baths
      • 2,322 Sq.Ft.
    • 3468 Winding Meadow Lane Sold

      $825,000

      3468 Winding Meadow Lane, Geneva, IL 60134

      • 5 Beds
      • 5 Baths
      • 3,208 Sq.Ft.
    • 1116 DUNSTAN Road Sold

      $820,000

      1116 DUNSTAN Road, Geneva, IL 60134

      • 4 Beds
      • 3 Baths
      • 3,000 Sq.Ft.
    • 39W605 S Mathewson Lane Sold

      $808,000

      39W605 S Mathewson Lane, Geneva, IL 60134

      • 5 Beds
      • 5 Baths
      • 3,442 Sq.Ft.
    • 228 Burgess Road Sold

      $801,500

      228 Burgess Road, Geneva, IL 60134

      • 3 Beds
      • 3 Baths
      • 2,541 Sq.Ft.
    • 1448 KEIM Circle Sold

      $780,000

      1448 KEIM Circle, Geneva, IL 60134

      • 4 Beds
      • 4 Baths
      • 3,131 Sq.Ft.
    • 1141 Morton Street Sold

      $755,000

      1141 Morton Street, Batavia, IL 60510

      • 4 Beds
      • 4 Baths
      • 3,584 Sq.Ft.
    • 1514 FARGO Boulevard Sold

      $750,000

      1514 FARGO Boulevard, Geneva, IL 60134

      • 4 Beds
      • 4 Baths
      • 3,182 Sq.Ft.
    • 402 N 1st Street Sold

      $750,000

      402 N 1st Street, Geneva, IL 60134

      • 2 Beds
      • 4 Baths
      • 2,777 Sq.Ft.
    • 6N820 Gilmore Drive Sold

      $750,000

      6N820 Gilmore Drive, St Charles, IL 60175

      • 5 Beds
      • 5 Baths
      • 3,720 Sq.Ft.
    • 1650 Chelsea Court Sold

      $725,000

      1650 Chelsea Court, Wheaton, IL 60189

      • 4 Beds
      • 5 Baths
      • 4,153 Sq.Ft.
    • 1687 Sauk Drive Active Under Contract

      $725,000

      1687 Sauk Drive, Batavia, IL 60510

      • 5 Beds
      • 4 Baths
      • 3,528 Sq.Ft.
    • 7500 US HIGHWAY 34 Sold

      $725,000

      7500 US HIGHWAY 34, Oswego, IL 60543

      • 3 Beds
      • 3 Baths
      • 3,184 Sq.Ft.
    • 564 Thorne Street For Sale

      $718,999

      564 Thorne Street, Batavia, IL 60510

      • 4 Beds
      • 3 Baths
      • 3,000 Sq.Ft.
    • 2835 Clara Avenue Sold

      $710,000

      2835 Clara Avenue, Aurora, IL 60502

      • 4 Beds
      • 4 Baths
      • 2,633 Sq.Ft.
    • 386 Megan Ann Court Sold

      $710,000

      386 Megan Ann Court, Geneva, IL 60134

      • 4 Beds
      • 4 Baths
      • 3,068 Sq.Ft.
    • 310 Westhaven Circle Active Under Contract

      $705,900

      310 Westhaven Circle, Geneva, IL 60134

      • 4 Beds
      • 4 Baths
      • 3,286 Sq.Ft.
    • 10 Morningside Avenue Sold

      $700,000

      10 Morningside Avenue, West Chicago, IL 60185

      • 5 Beds
      • 4 Baths
      • 2,062 Sq.Ft.
    • 39W415 Washburn Place Sold

      $700,000

      39W415 Washburn Place, Geneva, IL 60134

      • 4 Beds
      • 4 Baths
      • 3,485 Sq.Ft.
    • 986 Merrimac Circle Sold

      $700,000

      986 Merrimac Circle, Naperville, IL 60540

      • 5 Beds
      • 3 Baths
      • 2,506 Sq.Ft.
    • 921 Creekside Circle Sold

      $692,000

      921 Creekside Circle, Naperville, IL 60563

      • 4 Beds
      • 3 Baths
      • 2,410 Sq.Ft.
    • 4207 ROYAL FOX Drive Sold

      $689,900

      4207 ROYAL FOX Drive, St Charles, IL 60174

      • 5 Beds
      • 4 Baths
      • 2,572 Sq.Ft.
    • 2574 Spring Green Way Sold

      $689,000

      2574 Spring Green Way, Batavia, IL 60510

      • 5 Beds
      • 4 Baths
      • 3,055 Sq.Ft.
    • 1533 Ambleside Circle Sold

      $685,000

      1533 Ambleside Circle, Naperville, IL 60540

      • 4 Beds
      • 3 Baths
      • 2,500 Sq.Ft.
    • 822 N West Street Sold

      $665,000

      822 N West Street, Wheaton, IL 60187

      • 4 Beds
      • 4 Baths
    • 274 Branson Drive Sold

      $652,477

      274 Branson Drive, Batavia, IL 60510

      • 2 Beds
      • 2 Baths
      • 1,963 Sq.Ft.
    • 323 Brooklea Court Sold

      $651,000

      323 Brooklea Court, Naperville, IL 60565

      • 4 Beds
      • 3 Baths
      • 2,519 Sq.Ft.
    • 0S789 Skyline Drive Sold

      $650,000

      0S789 Skyline Drive, Batavia, IL 60510

      • 3 Beds
      • 3 Baths
      • 3,500 Sq.Ft.
    • 1161 Davey Drive Sold

      $650,000

      1161 Davey Drive, Batavia, IL 60510

      • 5 Beds
      • 4 Baths
      • 2,978 Sq.Ft.
    • 39W202 Warner Lane Sold

      $640,000

      39W202 Warner Lane, Geneva, IL 60134

      • 4 Beds
      • 4 Baths
      • 3,064 Sq.Ft.
    • 1198 Souders Avenue Sold

      $633,000

      1198 Souders Avenue, Elburn, IL 60119

      • 5 Beds
      • 5 Baths
      • 3,312 Sq.Ft.
    • 0S581 Skyline Drive Sold

      $625,000

      0S581 Skyline Drive, Batavia, IL 60510

      • 4 Beds
      • 3 Baths
      • 2,065 Sq.Ft.
    • 1206 Beckman Lane Active Under Contract

      $599,900

      1206 Beckman Lane, Batavia, IL 60510

      • 5 Beds
      • 4 Baths
      • 2,738 Sq.Ft.
    • 5N285 Oak Road Sold

      $595,000

      5N285 Oak Road, St Charles, IL 60175

      • 4 Beds
      • 3 Baths
      • 2,559 Sq.Ft.
    • 756 Longmeadow Court Sold

      $595,000

      756 Longmeadow Court, Carol Stream, IL 60188

      • 5 Beds
      • 4 Baths
      • 3,525 Sq.Ft.
    • 299 Fairhaven Drive Sold

      $588,000

      299 Fairhaven Drive, St Charles, IL 60175

      • 5 Beds
      • 4 Baths
      • 3,154 Sq.Ft.
    View All

    Follow Us On Instagram