Search

Leave a Message

Thank you for your message. We will be in touch with you shortly.

Explore Our Properties

Property Description

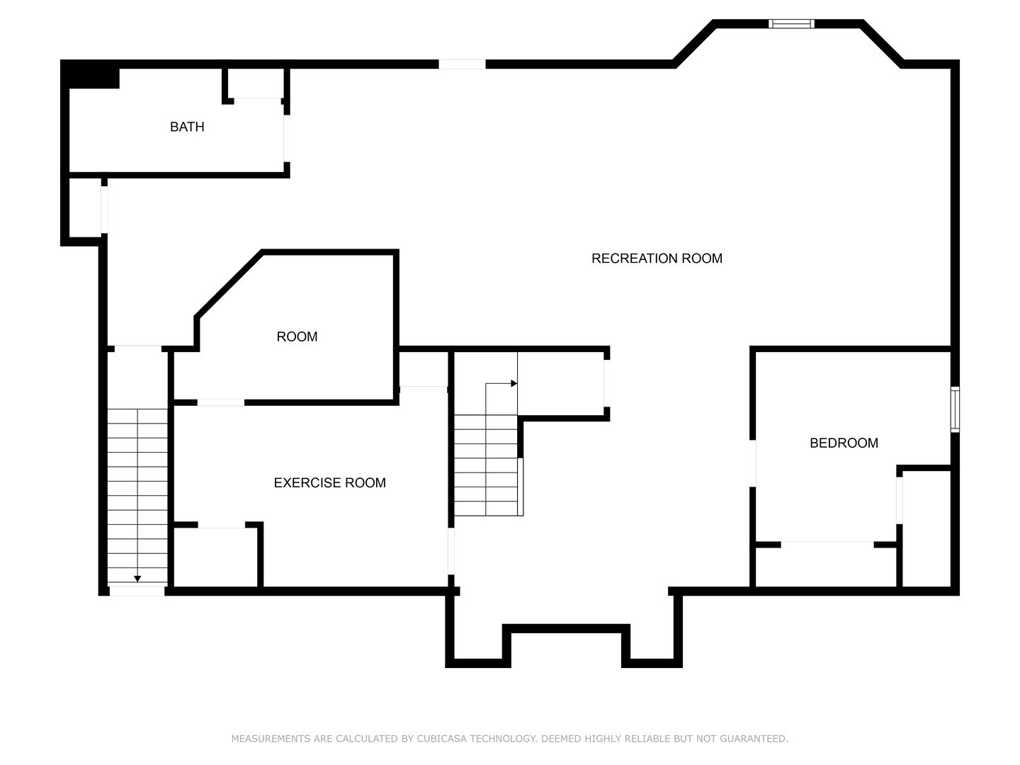
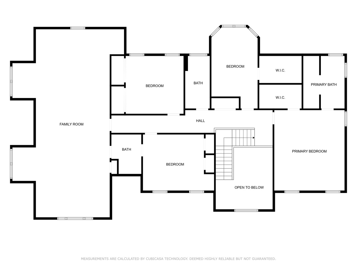
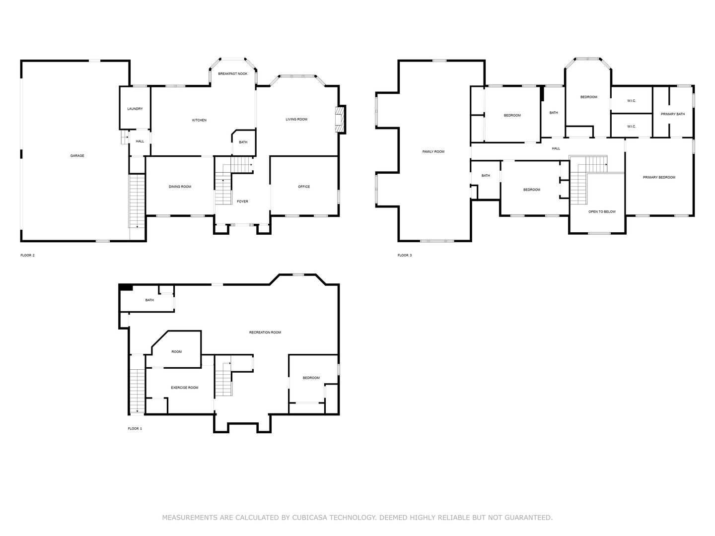
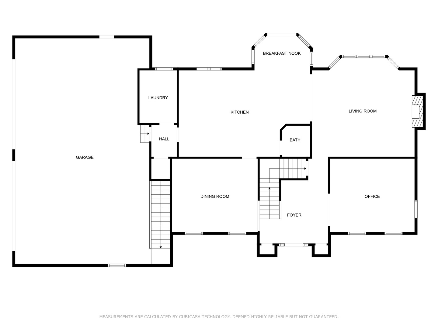
Have you been looking for a turn-key home that has it all in the amazing D303 School District? Nestled in the desirable Pine Haven subdivision of St. Charles, this property located on a premium lot enjoys a peaceful setting while being just minutes away from amenities, schools, and parks. Step into a bright and inviting interior with spacious living areas, tasteful finishes, and an abundance of natural light. This 3700+ square foot home has 5 bedrooms and 4.5 baths, a dedicated office, finished basement, 4-car garage with epoxy flooring and TONS of storage. A chef's dream kitchen awaits you with 42" custom cabinets, crown molding, island w/seating & eating area overlooking your picturesque backyard. An executive office with a boxed beamed ceiling and French doors with transom. The loft of your dreams is the focal point of your second level. Exterior access through the garage is featured in your finished basement with a full bath, bedroom, second family room & game room. Dual HVAC with 2 Nest systems for efficient daily use. Sitting on over 2.5 acres this tree-lined corner lot has 2 outbuildings; one for storage and the other has a top-of-the-line hot tub staying with the home! Endless possibilities for expansion and even a pool! Notable updates: Paint and numerous light fixtures ('24), Dishwasher ('20), Epoxy floor in garage ('20), Sliding door to back patio ('20), Well and septic upgrades ('18), Updated window shutters. Don't miss the chance to call this one yours!

Overview

Property Status
Sold
Lot Size
2.52 Acres
MLS ID
11989038
Property Type
Residential
Year Built
2005

Features & Amenities

Architecture Styles
Traditional
Garage Spaces
4.0
Water Source
Private Well
Lot Features
Corner Lot, Landscaped, Mature Trees
Heat Type
Natural Gas, Forced Air
Air Conditioning
Central Air
Laundry Room
Sink
Fireplace
Gas Log, Gas Starter
Appliances
Double Oven, Microwave, Dishwasher, Refrigerator, Washer, Dryer, Disposal, Stainless Steel Appliance(s), Cooktop, Built-In Oven, Range Hood, Water Softener Owned, Intercom
Other Interior Features
Hardwood Floors, First Floor Laundry, Walk-In Closet(s), Coffered Ceiling(s), Granite Counters, Separate Dining Room
Sewer
Septic-Private
Other Exterior Features
Hot Tub, Brick Paver Patio, Storms/Screens, Fire Pit
Elementary School
Wasco Elementary School
Middle School
Thompson Middle School
High School
St Charles North High School
School District
303
Sales Price
$750,000
Real Estate Tax
$14,715/yr
HOA
$600/yr

Downloads

6N820 Gilmore Drive

Schedule a Tour

We would love to help you see this beautiful home! As a full-service brokerage, we can help you tour. Please submit an offer, and answer questions about the buying process.

Thank you

for your interest in 6N820 Gilmore Drive, St Charles, IL 60175

6N820 Gilmore Drive
Navigate

I'm Interested In

6N820 Gilmore Drive

or
  • CallCarie Holzl

    License #475157027

    630-277-0569
  • Browse Our

    Portfolio

    Explore our featured properties, past transactions, or contact us to schedule a private showing.

    • 39W684 Switchgrass Lane Sold

      $1,670,000

      39W684 Switchgrass Lane, St Charles, IL 60175

      • 5 Beds
      • 5 Baths
      • 5,387 Sq.Ft.
    • 1335 Fox Glen Drive Sold

      $1,475,000

      1335 Fox Glen Drive, St Charles, IL 60175

      • 4 Beds
      • 6 Baths
      • 6,604 Sq.Ft.
    • 6N705 IL ROUTE 31 Sold

      $1,375,000

      6N705 IL ROUTE 31, St Charles, IL 60175

      • 5 Beds
      • 5 Baths
      • 7,000 Sq.Ft.
    • 3009 Glen Eagles Court Sold

      $1,212,500

      3009 Glen Eagles Court, St Charles, IL 60174

      • 5 Beds
      • 7 Baths
      • 4,848 Sq.Ft.
    • 20823 N Meadow Court Sold

      $1,111,111

      20823 N Meadow Court, Deer Park, IL 60010

      • 5 Beds
      • 5 Baths
      • 5,981 Sq.Ft.
    • 522 N Main Street Sold

      $975,000

      522 N Main Street, Naperville, IL 60563

      • 4 Beds
      • 5 Baths
      • 2,848 Sq.Ft.
    • 18 Campbell Street Sold

      $960,000

      18 Campbell Street, Geneva, IL 60134

      • 4 Beds
      • 4 Baths
      • 2,922 Sq.Ft.
    • 417 Alberosky Way Sold

      $907,500

      417 Alberosky Way, Batavia, IL 60510

      • 5 Beds
      • 5 Baths
      • 4,325 Sq.Ft.
    • 732 Alberosky Way Sold

      $905,000

      732 Alberosky Way, Batavia, IL 60510

      • 5 Beds
      • 5 Baths
      • 4,200 Sq.Ft.
    • 5065 E Sleepy Hollow Road Sold

      $900,000

      5065 E Sleepy Hollow Road, Earlville, IL 60518

      • 5 Beds
      • 4 Baths
      • 4,522 Sq.Ft.
    • 1050 PEBBLE BEACH Court Sold

      $895,000

      1050 PEBBLE BEACH Court, Geneva, IL 60134

      • 4 Beds
      • 5 Baths
      • 4,126 Sq.Ft.
    • 2347 Bird Lane Active Under Contract

      $875,000

      2347 Bird Lane, Batavia, IL 60510

      • 5 Beds
      • 5 Baths
      • 4,436 Sq.Ft.
    • 2396 Legacy Drive Sold

      $832,000

      2396 Legacy Drive, Aurora, IL 60502

      • 5 Beds
      • 4 Baths
      • 3,216 Sq.Ft.
    • 2195 Kane Lane Sold

      $826,000

      2195 Kane Lane, Batavia, IL 60510

      • 5 Beds
      • 4 Baths
      • 4,386 Sq.Ft.
    • 10N862 MUIRHEAD Road Sold

      $825,000

      10N862 MUIRHEAD Road, Elgin, IL 60124

      • 3 Beds
      • 3 Baths
      • 2,322 Sq.Ft.
    • 3468 Winding Meadow Lane Sold

      $825,000

      3468 Winding Meadow Lane, Geneva, IL 60134

      • 5 Beds
      • 5 Baths
      • 3,208 Sq.Ft.
    • 1116 DUNSTAN Road Sold

      $820,000

      1116 DUNSTAN Road, Geneva, IL 60134

      • 4 Beds
      • 3 Baths
      • 3,000 Sq.Ft.
    • 39W605 S Mathewson Lane Sold

      $808,000

      39W605 S Mathewson Lane, Geneva, IL 60134

      • 5 Beds
      • 5 Baths
      • 3,442 Sq.Ft.
    • 228 Burgess Road Sold

      $801,500

      228 Burgess Road, Geneva, IL 60134

      • 3 Beds
      • 3 Baths
      • 2,541 Sq.Ft.
    • 1448 KEIM Circle Sold

      $780,000

      1448 KEIM Circle, Geneva, IL 60134

      • 4 Beds
      • 4 Baths
      • 3,131 Sq.Ft.
    • 1141 Morton Street Sold

      $755,000

      1141 Morton Street, Batavia, IL 60510

      • 4 Beds
      • 4 Baths
      • 3,584 Sq.Ft.
    • 1514 FARGO Boulevard Sold

      $750,000

      1514 FARGO Boulevard, Geneva, IL 60134

      • 4 Beds
      • 4 Baths
      • 3,182 Sq.Ft.
    • 402 N 1st Street Sold

      $750,000

      402 N 1st Street, Geneva, IL 60134

      • 2 Beds
      • 4 Baths
      • 2,777 Sq.Ft.
    • 6N820 Gilmore Drive Sold

      $750,000

      6N820 Gilmore Drive, St Charles, IL 60175

      • 5 Beds
      • 5 Baths
      • 3,720 Sq.Ft.
    • 1650 Chelsea Court Sold

      $725,000

      1650 Chelsea Court, Wheaton, IL 60189

      • 4 Beds
      • 5 Baths
      • 4,153 Sq.Ft.
    • 1687 Sauk Drive Active Under Contract

      $725,000

      1687 Sauk Drive, Batavia, IL 60510

      • 5 Beds
      • 4 Baths
      • 3,528 Sq.Ft.
    • 7500 US HIGHWAY 34 Sold

      $725,000

      7500 US HIGHWAY 34, Oswego, IL 60543

      • 3 Beds
      • 3 Baths
      • 3,184 Sq.Ft.
    • 564 Thorne Street For Sale

      $718,999

      564 Thorne Street, Batavia, IL 60510

      • 4 Beds
      • 3 Baths
      • 3,000 Sq.Ft.
    • 2835 Clara Avenue Sold

      $710,000

      2835 Clara Avenue, Aurora, IL 60502

      • 4 Beds
      • 4 Baths
      • 2,633 Sq.Ft.
    • 386 Megan Ann Court Sold

      $710,000

      386 Megan Ann Court, Geneva, IL 60134

      • 4 Beds
      • 4 Baths
      • 3,068 Sq.Ft.
    • 310 Westhaven Circle Active Under Contract

      $705,900

      310 Westhaven Circle, Geneva, IL 60134

      • 4 Beds
      • 4 Baths
      • 3,286 Sq.Ft.
    • 10 Morningside Avenue Sold

      $700,000

      10 Morningside Avenue, West Chicago, IL 60185

      • 5 Beds
      • 4 Baths
      • 2,062 Sq.Ft.
    • 39W415 Washburn Place Sold

      $700,000

      39W415 Washburn Place, Geneva, IL 60134

      • 4 Beds
      • 4 Baths
      • 3,485 Sq.Ft.
    • 986 Merrimac Circle Sold

      $700,000

      986 Merrimac Circle, Naperville, IL 60540

      • 5 Beds
      • 3 Baths
      • 2,506 Sq.Ft.
    • 921 Creekside Circle Sold

      $692,000

      921 Creekside Circle, Naperville, IL 60563

      • 4 Beds
      • 3 Baths
      • 2,410 Sq.Ft.
    • 4207 ROYAL FOX Drive Sold

      $689,900

      4207 ROYAL FOX Drive, St Charles, IL 60174

      • 5 Beds
      • 4 Baths
      • 2,572 Sq.Ft.
    • 2574 Spring Green Way Sold

      $689,000

      2574 Spring Green Way, Batavia, IL 60510

      • 5 Beds
      • 4 Baths
      • 3,055 Sq.Ft.
    • 1533 Ambleside Circle Sold

      $685,000

      1533 Ambleside Circle, Naperville, IL 60540

      • 4 Beds
      • 3 Baths
      • 2,500 Sq.Ft.
    • 822 N West Street Sold

      $665,000

      822 N West Street, Wheaton, IL 60187

      • 4 Beds
      • 4 Baths
    • 274 Branson Drive Sold

      $652,477

      274 Branson Drive, Batavia, IL 60510

      • 2 Beds
      • 2 Baths
      • 1,963 Sq.Ft.
    • 323 Brooklea Court Sold

      $651,000

      323 Brooklea Court, Naperville, IL 60565

      • 4 Beds
      • 3 Baths
      • 2,519 Sq.Ft.
    • 0S789 Skyline Drive Sold

      $650,000

      0S789 Skyline Drive, Batavia, IL 60510

      • 3 Beds
      • 3 Baths
      • 3,500 Sq.Ft.
    • 1161 Davey Drive Sold

      $650,000

      1161 Davey Drive, Batavia, IL 60510

      • 5 Beds
      • 4 Baths
      • 2,978 Sq.Ft.
    • 39W202 Warner Lane Sold

      $640,000

      39W202 Warner Lane, Geneva, IL 60134

      • 4 Beds
      • 4 Baths
      • 3,064 Sq.Ft.
    • 1198 Souders Avenue Sold

      $633,000

      1198 Souders Avenue, Elburn, IL 60119

      • 5 Beds
      • 5 Baths
      • 3,312 Sq.Ft.
    • 0S581 Skyline Drive Sold

      $625,000

      0S581 Skyline Drive, Batavia, IL 60510

      • 4 Beds
      • 3 Baths
      • 2,065 Sq.Ft.
    • 1206 Beckman Lane Active Under Contract

      $599,900

      1206 Beckman Lane, Batavia, IL 60510

      • 5 Beds
      • 4 Baths
      • 2,738 Sq.Ft.
    • 5N285 Oak Road Sold

      $595,000

      5N285 Oak Road, St Charles, IL 60175

      • 4 Beds
      • 3 Baths
      • 2,559 Sq.Ft.
    • 756 Longmeadow Court Sold

      $595,000

      756 Longmeadow Court, Carol Stream, IL 60188

      • 5 Beds
      • 4 Baths
      • 3,525 Sq.Ft.
    • 299 Fairhaven Drive Sold

      $588,000

      299 Fairhaven Drive, St Charles, IL 60175

      • 5 Beds
      • 4 Baths
      • 3,154 Sq.Ft.
    View All

    Follow Us On Instagram